Si has viajado por el interior de España, y eres observador, habrás reparado en algún edificio como este, situado cerca de pueblos o ciudades de cierta importancia. Para los que no lo sepáis, se trata de silos destinados al almacenamiento de cereales.
A estos hitos se les ha llamado las «catedrales del campo», ya que destacan por su altura en el paisaje rural. A pesar de su destino más prosaico (pero no menos importante) y de un aspecto bastante menos espectacular que las catedrales de verdad, también forman parte de nuestro patrimonio. En este caso del industrial agroalimentario. En realidad, la gran mayoría de ellos están hoy en día olvidados y en desuso.
Un poco de historia
Situémonos en la España del primer tercio del siglo XX. Unas cosechas de trigo muy variables de un año para otro, el aumento de las tierras dedicadas a este cereal, aunque apenas dieran rendimiento y una gran desorganización del mercado del trigo, hacían necesario que el Estado interviniera, estabilizando precios y rentas. Esta situación, denominada como «el problema triguero», fue objeto de las típicas discusiones políticas sobre lo que había que hacer, que solo se tradujeron en el tímido intento de los silos cooperativos. Pero llegó la Guerra Civil y lo trastocó todo.
Servicio Nacional del Trigo
En plena contienda, en 1937, se crea el Servicio Nacional del Trigo (SNT), cuya misión era comprar la cosecha de trigo a los agricultores, para asegurar el abastecimiento de la población y el mantenimiento de los campesinos. Durante la posguerra (a la que hay que añadir la «pertinaz sequía») aumenta la precariedad de los miles de pequeños agricultores trigueros, se hace inevitable una mayor intervención estatal.
Red Nacional de Silos y Graneros
Así, entre 1941 y 1984 el SNT proyecta, construye y consolida la Red Nacional de Silos y Graneros, una enorme infraestructura estatal diseñada por Ingenieros Agrónomos (asesorados por un arquitecto en temas de estética) para recoger el trigo en las zonas productoras y redistribuirlo según las necesidades. Para su construcción se utilizaron los precarios materiales disponibles en la posguerra y se contó con el asesoramiento de ingenieros alemanes.
La Comunidad Económica Europea
Mientras el sector del trigo y otros cereales funcionó en régimen de monopolio estatal, los sucesivos organismos estatales agrarios se dedicaron a comprar, almacenar y vender cereales, por lo que todos los Silos de la Red se usaban con frecuencia. Con la incorporación de España en la Comunidad Económica Europea en 1986, la intervención en los mercados pasa a depender de la legislación comunitaria y ya no hacen falta tantos. En la actualidad disponemos de una Red Básica de almacenamiento público compuesta por 141 unidades, entre silos y graneros.
No todos los silos son iguales
Aunque estos edificios puedan parecer iguales, hay una gran diversidad, que hace a la Red de Silos única en el mundo. Aunque funcionalmente son todos muy parecidos, el aspecto final varía mucho según su destino, la época de construcción y los materiales utilizados.
En una segunda etapa de construcción, a finales de los años cincuenta, se impone el sentido práctico y la economía. Se construyen silos más pequeños dispersos por el territorio, proyectados en serie y de aspecto más sobrio. Son los silos típicos que todos conocemos, como los de las fotos de Carbonero el Mayor o Motilla del Palancar.
En la última fase final de la red, en la década de los 70, primaba economía en la construcción y los silos, desnudos y funcionales, se parecen más a los construidos en Norteamérica.
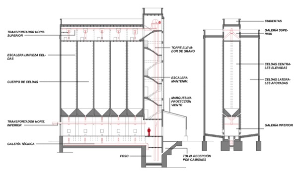
Un silo por dentro
|
|
Las celdas de almacenamiento son grandes depósitos verticales adosados entre sí, formando filas. Pueden apreciarse a simple vista o no. Pueden ser de hormigón, ladrillo cerámico o acero.
La torre elevadora aloja en su interior la maquinaria necesaria para elevar el grano desde el foso, donde descargaban el grano los camiones, hasta la galería superior horizontal de reparto. Allí se encontraba la maquinaria que distribuía el grano en las distintas celdas.
Para sacar el grano de las celdas existía una galería inferior donde se encontraba toda la maquinaria que permitía recoger el grano por gravedad, pesarlo y ensacarlo o cargarlo en los camiones.
Muchos silos también cuentan con marquesina en la zona de recepción del grano, para proteger tanto a los agricultores de las inclemencias del tiempo (básicamente sol, recordemos que el trigo se cosecha en verano). Son también muy frecuentes las naves anexas adosadas al silo para realizar tareas de ensacado, selección y guarda de maquinaria.
Situación actual
Aparte de los silos que constituyen la red básica y que están actualmente en uso. La administración central ha ido poco a poco deshaciéndose del resto, «endosándoselos» a Comunidades Autónomas y ayuntamientos. Aun así, todavía le quedan.
Para evitar el derribo o desaparición de este patrimonio histórico, se han planteado fórmulas de reutilización de estos edificios, ofreciéndoles otros usos: museo, teatro, centro de recepción de visitantes, biblioteca, hotel o incluso balneario.
|
|






